Simon Jouin
Architecte


  8 rue de Terre Neuve 


75020 Paris 

simonjouin.archi@gmail.com
T. 06 77 52 93 90


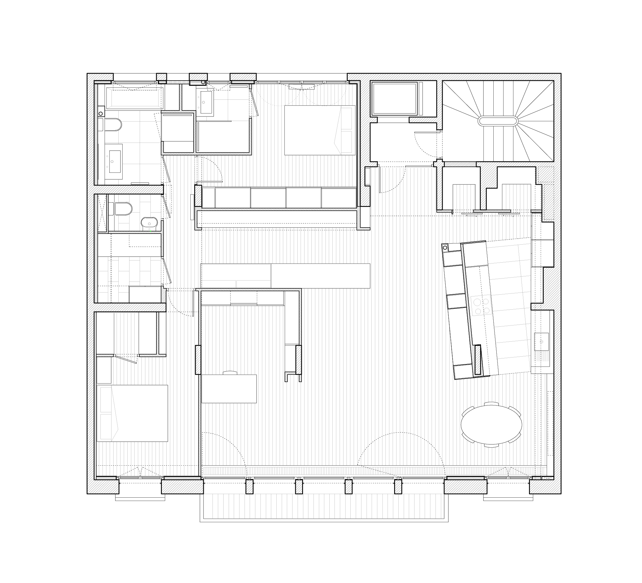
Appartement Invalides




Rénovation totale d’un appartement pour un couple de collectionneurs

Projet développé avec ADE Architectes

Entreprises : FAIR (TCE) / Castet (menuiserie) Années : 2017 / 2018
Surface : 120m²






   


   

 
   


   


Cargo Collective 2017 — Frogtown, Los Angeles